Indtast søgeord

Artikel
31.08.2020

Køkkenudvidelse i åbningstiden

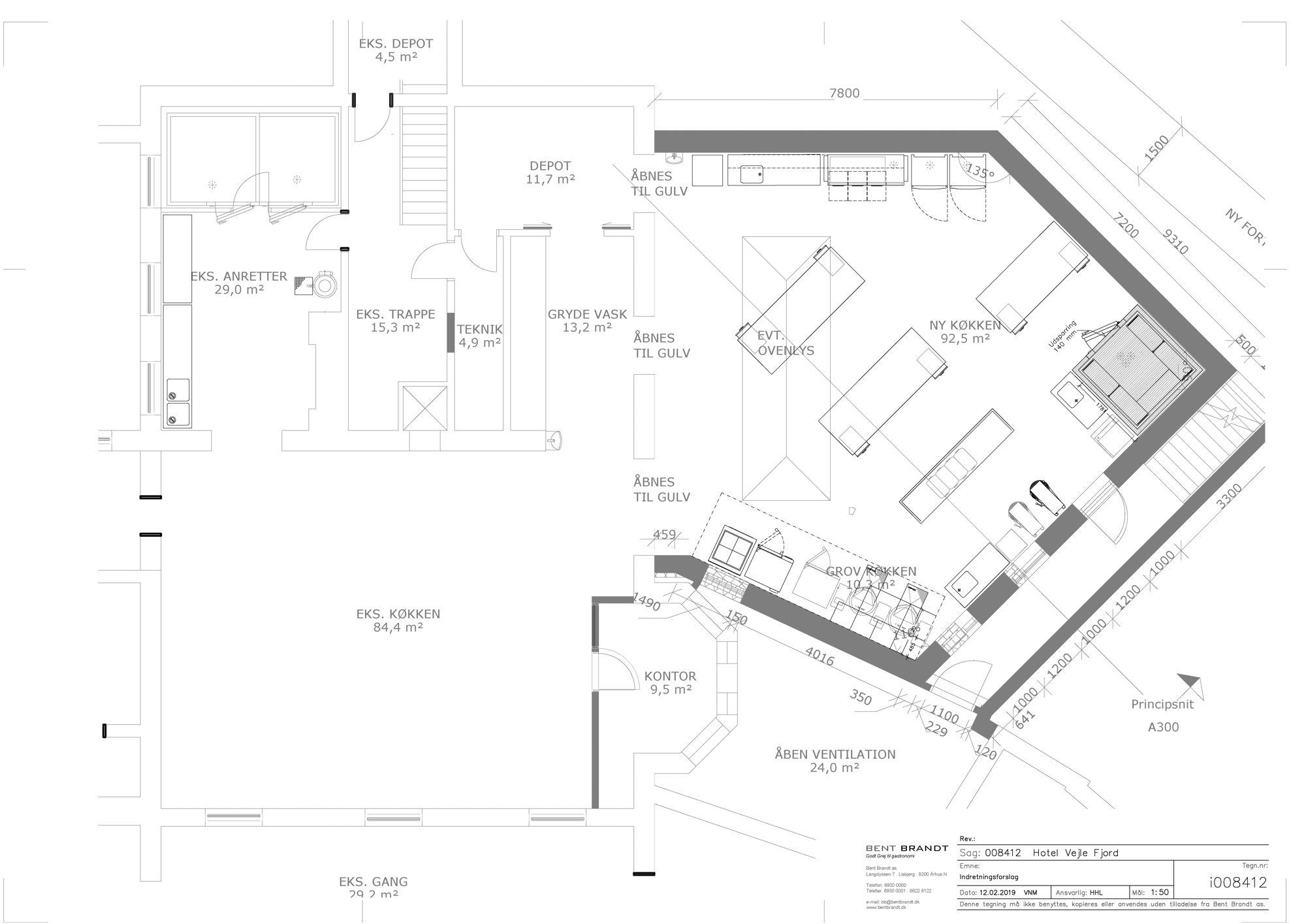
Fredet bygning. Lille og kringlet køkken, hvor 20 medarbejdere laver mad for 33 mio. kr. om året. Pladsmangel, men ingen ledige kvadratmetre. Hvad gør man? Man udvider køkkenet til det dobbelte, deler pladsen med håndværkerne under byggeriet og skjuler tilbygningen i skrænten, så alle er glade.

Hotel Vejlefjord ligger meget smukt i skoven på skråningen ned mod fjorden. Det gamle sanatorium, tegnet af arkitekten bag bl.a. d’Angleterre og Det kgl. Teater, blev indviet i år 1900 og i de efterfølgende år var stedet medvirkende til, at tuberkulosen blev udryddet i Danmark. Hotel Vejlefjord er stadig stedet, der sørger for menneskers velbefindende. Siden 2008 har en imponerende spa- og wellnessafdeling tiltrukket gæster og konferencedeltagere fra hele Norden, der supplerer afslapning og naturoplevelser med gastronomi på højt niveau. I de seneste 9 år har køkkenchef Pauline Klærke stået i spidsen for de omkring 20 medarbejdere, der længe har været udfordret af trange, labyrint-agtige forhold i det gamle, lettere ombyggede patientkøkken i sanatoriekælderen. Et nyt køkken stod højt på ønskesedlen, men den smukke bygning er fredet, så der skulle tænkes ud af boksen – eller rettere: ind i skrænten.

Det 'usynlige' køkken

Det blev et gammelt vandreservoir, der blev redningen. Det var bygget ind i skrænten for enden af bygningen, så det kunne opsamle vand fra bakken, og nu blev det bestemmende for både form og størrelse for køkkenets udvidelse.

”150 m2 og næsten trekantet. Det var mulighederne, vi stod med, da det blev gravet ud,” fortæller Pauline. ”Det betød, at vi kunne bygge under jorden i forlængelse af det eksisterende kælderkøkken, så vi fordoblede vores areal. Det var et krav fra myndighederne, at den nye udvidelse ikke måtte være synlig, så et græstæppe dækker over de nødvendige installationer til bl.a. ventilation og kun et flot ovenlysvindue afslører, at der er livlig aktivitet nedenunder.”

Og der er ikke bare livlig aktivitet – nu er der også et godt flow i arbejdsgangen.

Vejlefjord Bentbrandt RAISFOTO 7590

Gennemtænkt funktion

Der skulle mange tanker og skitser til, før planerne gik op i en højere enhed. Sammen med souschef Magnus Pedersen fik Pauline gennemtænkt funktionerne i de mange rum sammen med konsulent Klaus Klinge og projektleder Henriette Hvid Larsen fra BENT BRANDT. Brikkerne faldt på plads:

  • En kompakt vareindlevering fik mere luft.
  • Et fryserum, der havde tilhørt grovkøkkenet, blev ombygget til køl.
  • Et nyt grovkøkken med plads til vareopbevaring blev etableret i det gamle kolde køkken.
  • Det varme køkken fik rigtig god plads til flere ovne, komfur og bageri i det nybyggede køkken, hvor der også blev plads til yderligere et fryserum.

Meget udstyr skulle flyttes rundt – samtidig med, at et par hundrede gæster skulle bespises morgen, middag og aften, selskaber skulle afholdes og konferencer gennemføres.

Vejlefjord Bentbrandt RAISFOTO 7646

Gastronomi mens der bygges

”Køkkenet var ikke lukket på noget tidspunkt under byggeriet. Vi delte pladsen med en hær af meget samarbejdsvillige og forstående håndværkere, og vi levede med masser af afdækning og støvvægge,” erindrer Pauline og Magnus. Men det kunne lade sig gøre, fordi arbejdet var perfekt planlagt. Alt var gjort klar, så vi kunne flytte ovnene i den stille time lige efter morgenmaden, så de var klar til frokostretterne. Det havde nok været mere bøvlet, hvis vi også skulle flytte opvasken, men det giver mening, at den fortsat er placeret 3 forskellige steder i bygningen.”

For man ved jo nok, hvordan man skal få tingene til at fungere på Hotel Vejlefjord – både med og uden afdækning og støvvægge.

Vejlefjord Illu 008412